查看: 10627|回复: 1

[装修日记] 桂林融创揽云府户型解析,深度空间解锁空间美学与实用密码!

[复制链接]

1086

主题

3117

回帖

2万

积分

发表于 2025-4-25 14:34:25 | 显示全部楼层 |阅读模式
1.jpg

户型很难尽善尽美
总会有一些难以避免的硬伤
如何巧妙化解户型缺陷
就需要设计师充分发挥专业和智慧

2.jpg

融创揽云府专场户型解析
现场解锁揽云府交房四大户型
(89㎡/105㎡/132㎡/143㎡)
手把手教你装修
多套在建工地、落地实景、报价方案
助您装修避坑

设计师1vs1深度剖析,打造宜居户型

面对不同户型,业主不同需求
桂林深度空间装饰设计师
通过验房、量房
会采用不同的对策进行户型优化设计
在此,我们也为大家分析一下
这次揽云府部分户型优缺点以及布局思路
(89㎡、105㎡、132㎡、143㎡)

项目楼盘:融创揽云府
面积:89㎡

3-1.jpg
(原始户型图)

3-2.jpg
(平面布局图)

户型分析:
■玄关到客餐厅区域无过渡,缺乏隐私性
■厨房面积不大,如何布局是关键

推荐设计风格

微信图片_20250425150237.jpg

微信图片_20250425085500.jpg

微信图片_20250425085429.jpg

微信图片_20250425085427.jpg


项目楼盘:融创揽云府
面积:105㎡

5-1.jpg
(原始户型图)

5-2.jpg
(平面布局图)

户型分析:
■玄关面积小,如何布局是关键
■入户门直冲客厅,没有隐私遮挡

推荐设计风格

微信图片_20250425084939.jpg

微信图片_20250425105023.jpg

微信图片_20250425105223.jpg


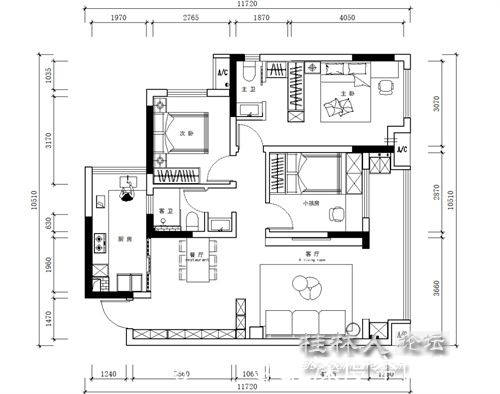
项目楼盘:融创揽云府
面积:132㎡

7-1.jpg
(原始户型图)

7-2.jpg
(平面布局图)

户型分析:
■主卧卫生间门对着主卧床
■景观大阳台是亮点,但延伸至入户卧室区域,影响隐私
■动静分区不合理,动区与静区互相干扰
■客卫面积比较小,需要优化布局提高使用效率


推荐设计风格

微信图片_20250425085826.jpg

微信图片_20250425085829.jpg

微信图片_20250425085831.jpg

微信图片_20250425085908.jpg


项目楼盘:融创揽云府
面积:143㎡


9-1.jpg
(原始户型图)

9-2.jpg
(平面布局图)

户型分析:
■阳台连接卧室,需要做隐私保护
■主卫门正对主卧床位置,需要做隔断合理布局
■客卫狭小,如何做隔断提高使用效率是关键


推荐设计风格

5.png

1.jpg

2.jpg

3.jpg



发送户型图,为您专业布局

222222222222.jpg

如果您正准备装修
如果您还在为户型布局、设计风格发愁
桂林深度空间装饰邀请您光临
为您提供多套
布局方案与设计参考
为您定制属于您的居家生活体验


多套在建工地,等你来探

11111111.jpg

桂林深度空间装饰目前在融创文旅城(包括揽云府、南溪府、文岚府、春澜府、栖霞府、烟雨府、翰林府、九棠府等)有多套在建工地,涵盖多种装修工序、布局设计以及风格类型,在这里都能找到对应的实景参考。

如果您是融创业主,正有装修打算,欢迎您来邻居家工地考察,亲身感受我们的施工品质与设计魅力,让家的模样更加清晰可触!


1086

主题

3117

回帖

2万

积分

 楼主| 发表于 2025-5-1 08:33:52 | 显示全部楼层
联系我,定制您的装修方案:18077392735
回复 支持 反对

使用道具 举报

您需要登录后才可以回帖 登录 | 注册

本版积分规则

关于我们|广告合作|网站客服|小黑屋|法律声明|论坛APP|触屏版| 桂林生活网

桂林生活网(Guilinlife.com)版权所有

Powered by Discuz! ( 桂B2-20040001 )

快速回复 返回顶部 返回列表 桂林人论坛客户端